Description
- Chalet sur 2 niveaux.
- Chalet avec réduit et garage annexe et grand balcon de 48 m2.
- Rez en béton armé et étage en ossature bois.
- Le chauffage sera assuré par le biais d’une pompe à chaleur air- eau dont l’échangeur sera placé à l’extérieur.
- La préparation de l’eau chaude sanitaire sera assurée par le biais de la pompe à chaleur.
- Ce plan est entièrement personnalisable. Il peut être modifié, adapté ou changé afin qu’il soit exactement conforme à vos moindres désirs.
- Ce modèle peut être, au besoin, adapté ou modifié en fonction de la topographie de votre terrain.
- Dans le prix global, les taxes de raccordement et de construction ne sont pas comptées (car elles dépendent de la commune où la construction sera érigée).
- Le prix mentionné est prévu pour un terrain en légère pente.
Surfaces :
- Surface globale : 185.7 m2
- Rez : 84.9 m2
- Etage : 100.8 m2
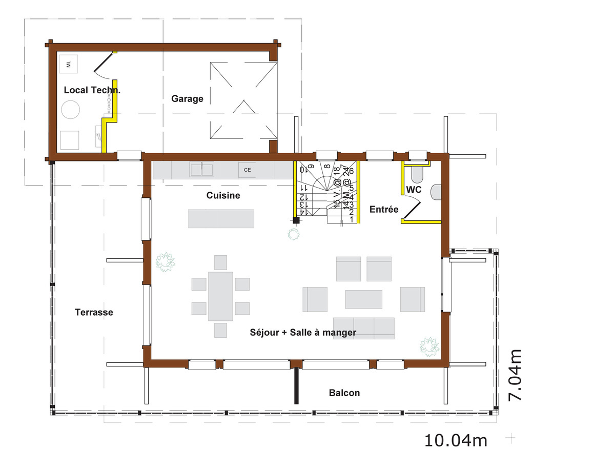
Rez-de-chaussée :
- Chambre 1 : 11.22 m2
- Chambre 2 : 9.74 m2
- Chambre 3 : 9.56 m2
- Chambre 4 : 6.61 m2
- WC/douche 2 : 4.75 m2
- WC/douche 1 : 5.92 m2
- Dégagement : 5.86 m2
- Réduit : 9.00 m2
Etage :
- Cuisine : 10.53 m2
- Séjour/salle à manger : 44.51 m2
- WC : 2.39 m2
- Entrée : 2.77 m2
- Garage : 17.64 m2
- Local technique : 5.71 m2
- Terrasse : 23.70 m2
- Balcon : 21.60 m2
Sont compris dans ce prix :
- CHF 25'000.- pour la cuisine
- CHF 17'220.- pour la fourniture des appareils sanitaires
- CHF 8'000.- pour les raccordements aux services publics (fouilles, conduites, connections)
- CHF 10'000.- pour la fourniture et la pose d’un poêle
- CHF 100.- le m2 pour la fourniture et la pose du carrelage ou du parquet
Ces prix ont été calculés pour la « zone Valais ». Un devis plus précis pourra être fait en dehors de ce cercle géographique.
Tous les détails figurent sur notre brochure. N’hésitez pas à nous contacter pour de plus amples informations.
Characteristics
Reference
ALEXANDRA
Bathrooms
3
Balcony
1
Rooms
5.5
Bedrooms
4
Total number of floors
2
Number of terraces
1
Heating type
Heat pump
Domestic water heating system
Heat pump
Living area
185.7 m²
Number of toilets
3



