Descriptif
- Chalet sur 2 niveaux.
- Chalet avec grande terrasse en bois de 51 m2.
- Rez en béton armé et étage en ossature bois.
- Le chauffage sera assuré par le biais d’une pompe à chaleur air-eau dont l’échangeur sera placé à l’extérieur.
- La préparation de l’eau chaude sanitaire sera assurée par le biais de la pompe à chaleur.
- Ce plan est entièrement personnalisable. Il peut être modifié, adapté ou changé afin qu’il soit exactement conforme à vos moindres désirs.
- Ce modèle peut être, au besoin, adapté ou modifié en fonction de la topographie de votre terrain.
- Dans le prix global, les taxes de raccordement et de construction ne sont pas comptées (car elles dépendent de la commune où la construction sera érigée).
- Le prix mentionné est prévu pour un terrain en légère pente.
Surfaces :
- Surface globale : 219.6 m2
- Rez : 92.2 m2
- Etage : 127.4 m2
Rez-de-chaussée :
- Dégagement : 5.74 m2
- Chambre 1 : 12.38 m2
- Chambre 2 : 12.94 m2
- Chambre 3 : 11.41 m2
- WC/bain/douche : 9.18 m2
- WC/douche : 2.90 m2
- Local technique : 10.33 m2
- Cave : 9.35 m2
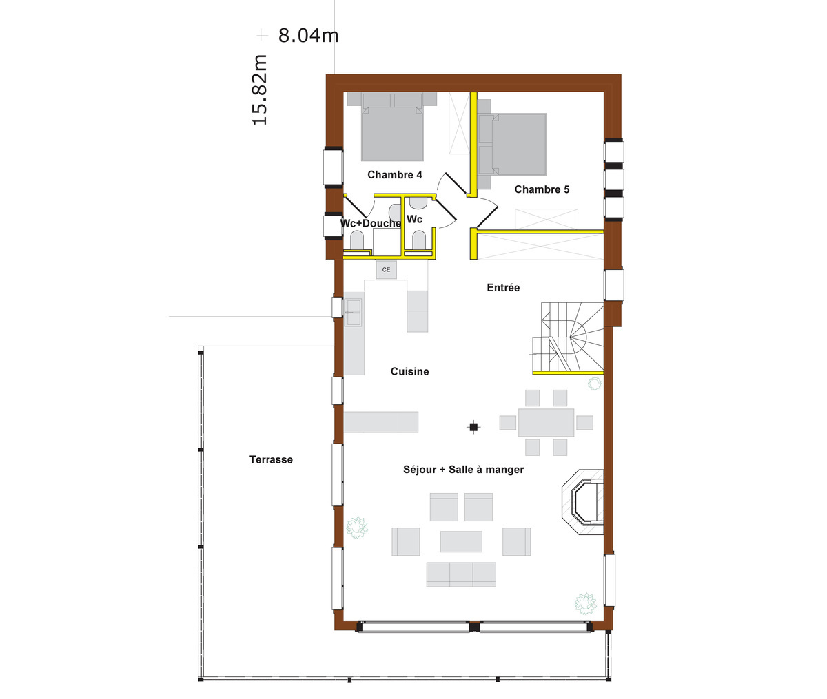
Etage :
- Entrée : 11.43 m2
- Cuisine : 18.13 m2
- Séjour/salle à manger : 48.06 m2
- Chambre 4 : 10.76 m2
- Chambre 5 : 14.60 m2
- WC : 1.22 m2
- WC/douche : 2.82 m2
- Terrasse/balcon : 51 m2
Sont compris dans ce prix :
- CHF 25'000.- pour la cuisine
- CHF 24'290.- pour la fourniture des appareils sanitaires
- CHF 8'000.- pour les raccordements aux services publics (fouilles, conduites, connections)
- CHF 10'000.- pour la fourniture et la pose d’un poêle
- CHF 100.- le m2 pour la fourniture et la pose du carrelage ou du parquet
Le prix a été calculé pour la « zone Valais ». Un devis plus précis pourra être fait en dehors de ce cercle géographique.
Tous les détails figurent sur notre brochure. N’hésitez pas à nous contacter pour de plus amples informations.
Caractéristiques
Référence
WILSON
Sanitaires
4
Balcon
1
Pièces
6.5
Chambres
5
Nombre d'étage(s) total
2
Nombre de terrasse
1
Type de chauffage
Pompe à chaleur
Eau chaude sanitaire
Pompe à chaleur
Surface habitable
219.6 m²
Nombre de WC
4



