Descriptif
Vous rêvez d'une vue à couper le souffle tout en étant à quelques minutes de Sion ? Cette parcelle à bâtir est faite pour vous !
Ce terrain entièrement équipé et sans vis-à-vis se trouve à la fin d'une rue privée et en bordure de zone agricole, ce qui vous garantit un cadre bucolique et intimiste sans crainte de nouvelles constructions. Sion est atteignable en 10 minutes en voiture et il vous faudra 15 minutes pour rallier la piste de l'Ours.
Détail du terrain :
Petit plus, mais non négligeable, une parcelle agricole attenante de 1148 m2 est incluse dans le prix globale. Cette dernière vous permettra de disposer d'un jardin, d'un verger ou même d'une aire de jeu pour les enfants. De quoi agrémenter d'une belle plus-value une terrain qui propose une vue sublime sur notre canton et sa capitale.
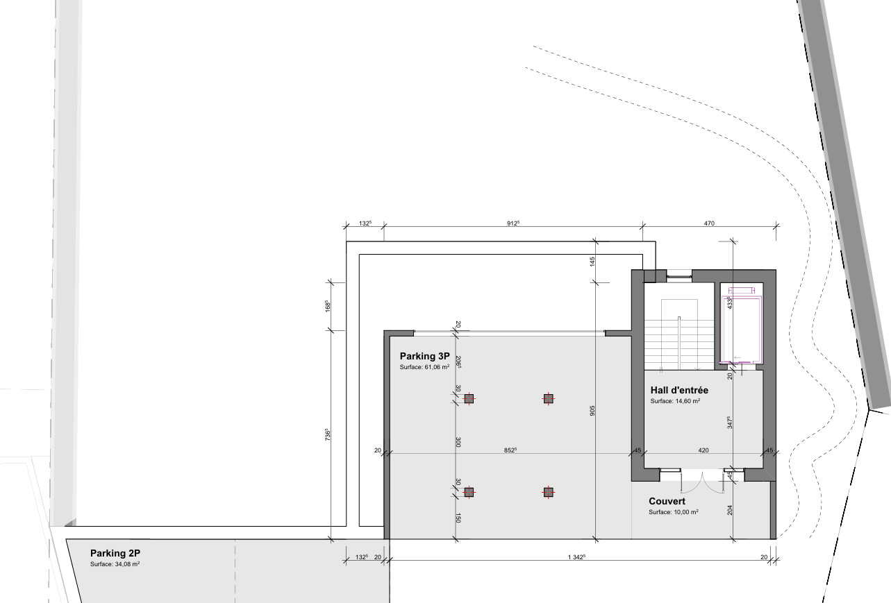
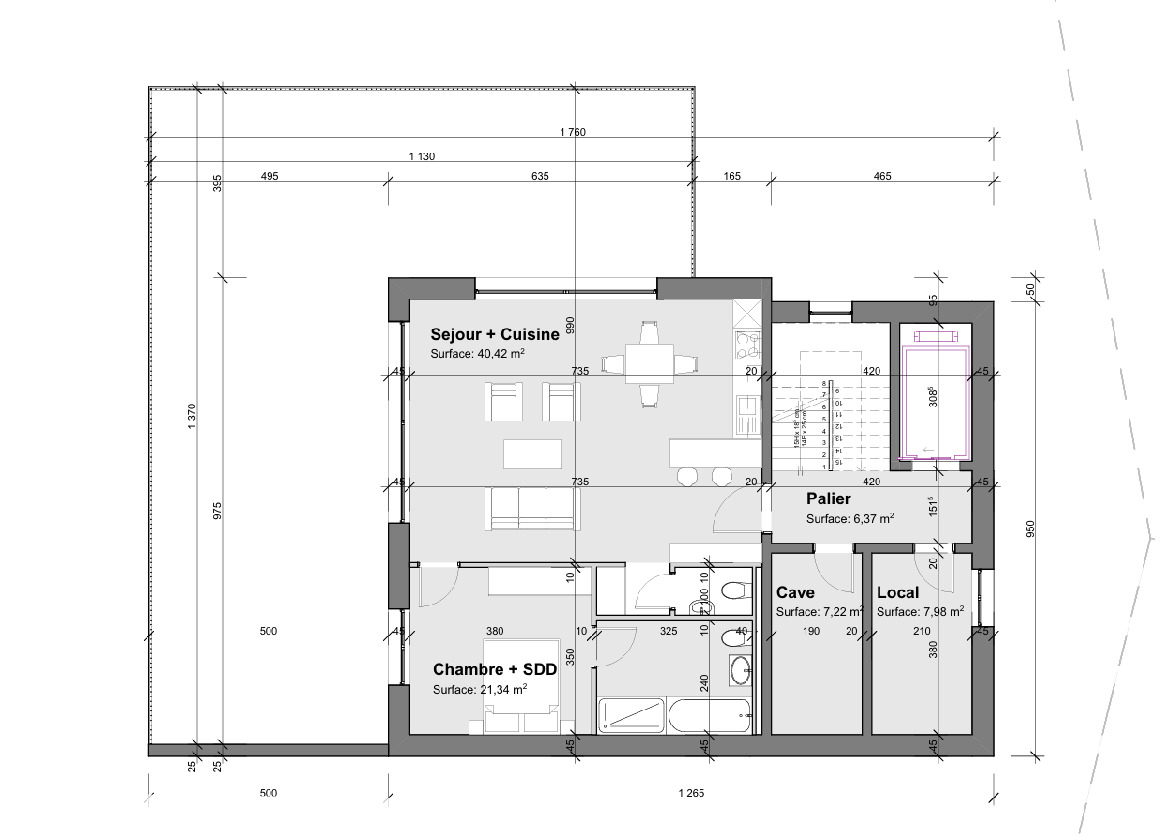
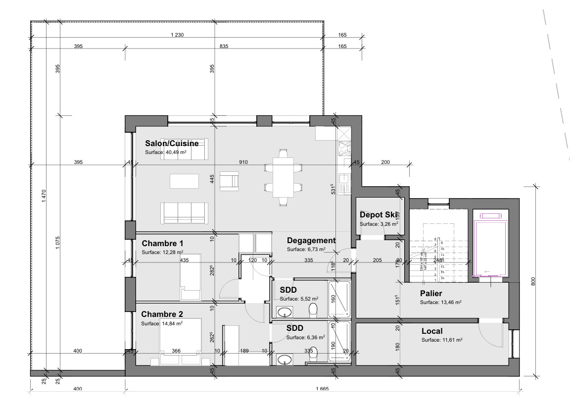
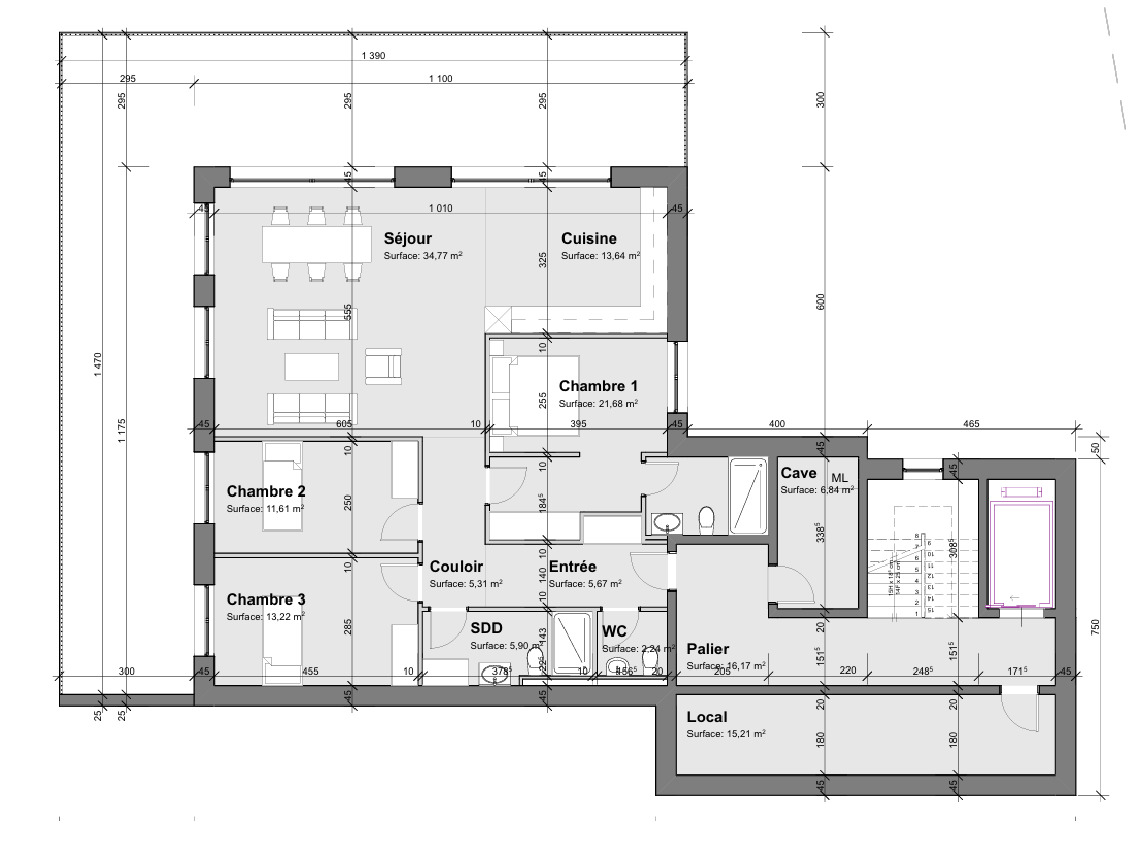
Les plans, conçus par un bureau d'architecte, proposent la construction d'un petit immeuble de trois appartements, disposés en escaliers le long de la pente pour profiter au maximum du panorama. Une imposante terrasse ceinture à l'ouest et au nord chaque étage, tous desservis par un ascenseur.
Vous souhaitez obtenir des précisions, le dossier complet ? Contactez-moi par téléphone ou par E-mail et je vous renseignerai très volontiers. Je me tiens également à votre disposition pour une visite sur place.
Ce terrain entièrement équipé et sans vis-à-vis se trouve à la fin d'une rue privée et en bordure de zone agricole, ce qui vous garantit un cadre bucolique et intimiste sans crainte de nouvelles constructions. Sion est atteignable en 10 minutes en voiture et il vous faudra 15 minutes pour rallier la piste de l'Ours.
Détail du terrain :
- Zone : H30 (IBUS 0.5)
- Altitude : 700 m
- Superficie : 1078 m2
- Environnement calme
- Entièrement équipé
Petit plus, mais non négligeable, une parcelle agricole attenante de 1148 m2 est incluse dans le prix globale. Cette dernière vous permettra de disposer d'un jardin, d'un verger ou même d'une aire de jeu pour les enfants. De quoi agrémenter d'une belle plus-value une terrain qui propose une vue sublime sur notre canton et sa capitale.
Les plans, conçus par un bureau d'architecte, proposent la construction d'un petit immeuble de trois appartements, disposés en escaliers le long de la pente pour profiter au maximum du panorama. Une imposante terrasse ceinture à l'ouest et au nord chaque étage, tous desservis par un ascenseur.
Vous souhaitez obtenir des précisions, le dossier complet ? Contactez-moi par téléphone ou par E-mail et je vous renseignerai très volontiers. Je me tiens également à votre disposition pour une visite sur place.
Caractéristiques
Référence
5079910
Surface terrain
1'078 m²
Surface habitable
323 m²
Surface habitable totale
523 m²









