Descriptif
DIRECTEMENT DU CONSTRUCTEUR
A 15 minutes du centre ville de Monthey, laissez-vous charmer par cette très belle maison individuelle en cours de construction sur une parcelle de plus de 1'100 m2 proche de la nature avec une vue sur la plaine du Rhône, les alpes valaisannes et vaudoises.
De construction traditionnelle (béton et briques avec revêtement des façades en bois pour respecter le règlement des constructions), cette maison répond aux normes énergétiques élevées avec ses fenêtres à triple vitrages et sa pompe à chaleur air-eau. Les finitions sont au gré de l'acquéreur (cuisine, carrelage, peinture, etc) et peuvent éventuellement être exécutées par l'acquéreur pour aider son financement. La construction a été réalisée par des entreprises locales avec des matériaux de qualité.
Ce bien neuf peut être acquit comme résidence secondaire ou principale et également pour les personnes domiciliées à l'étranger. Un financement avec une banque locale est possible.
Cette maison individuelle est très facilement accessible toute l'année. Elle bénéficie de 2 garages (dont un très grand). Elle vous permettra de vous retrouver dans un lieu de vie agréable au calme et loin du stress quotidien. L'ensoleillement est favorable et la vue est imprenable sur les montagnes. Deux agréables terrasses pourront être aménagées à l'est et/ou à l'ouest et permettent de profiter de la nature verdoyante environnante.
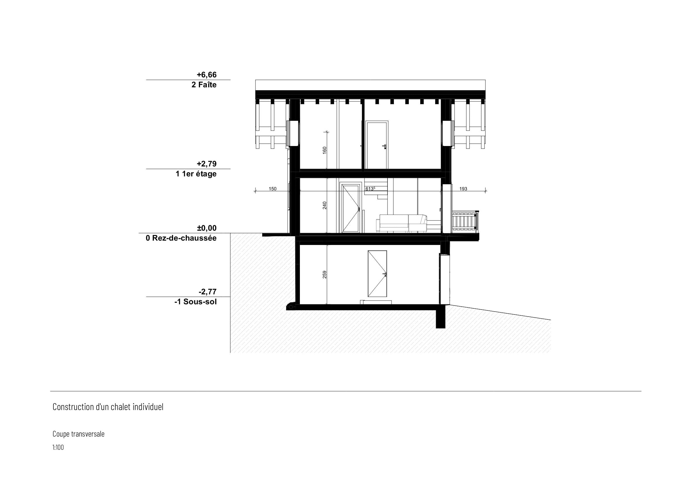
La distribution de ce très beau bien neuf de 631 m3 est la suivante :
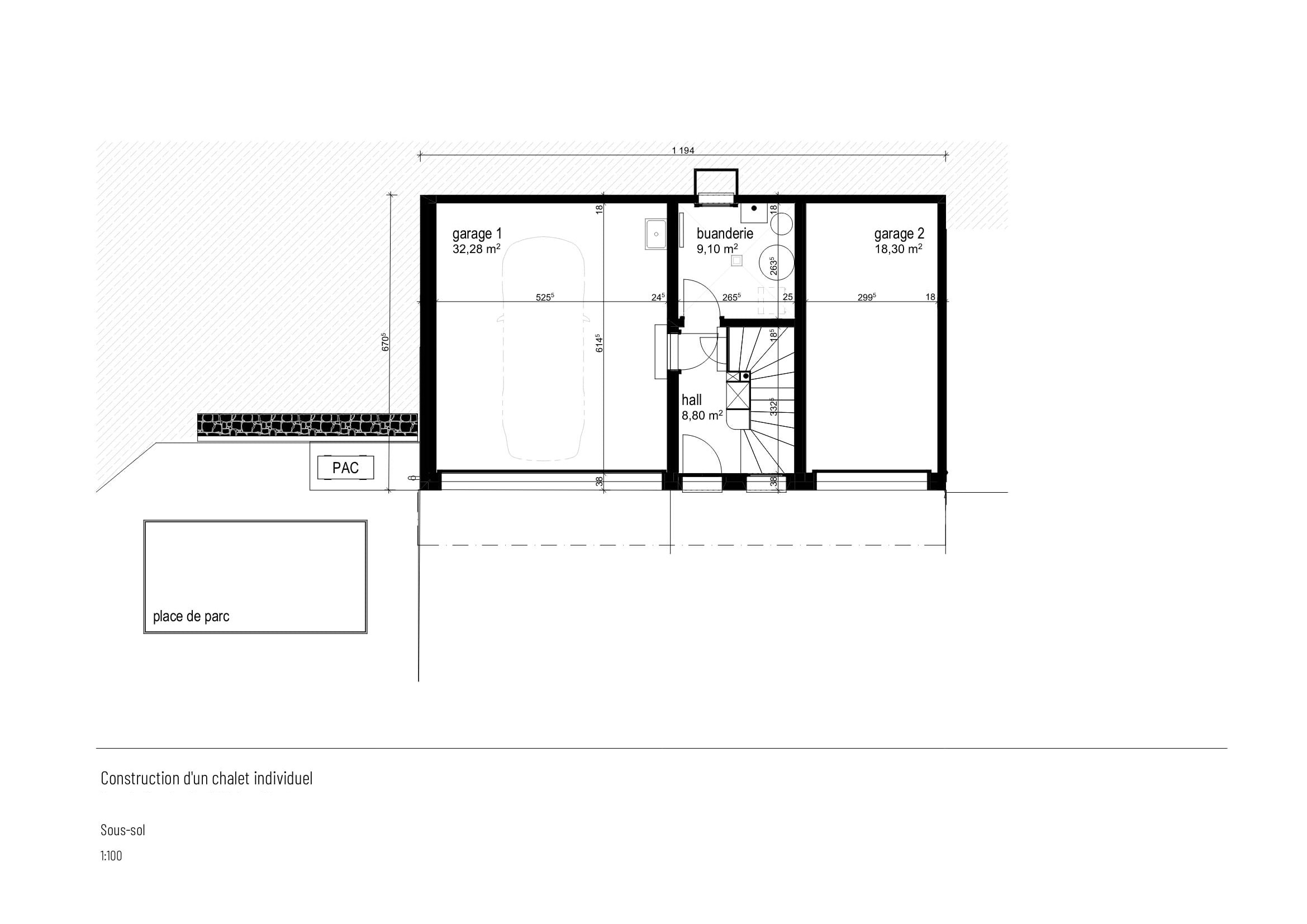
Sous-sol
- Grand garage de 32 m2 idéal pour bricoler ou ranger du matériel
- Hall d'entrée de 9 m2
- Buanderie/local technique de 9 m2
- Garage de 18 m2 pour 1 voiture
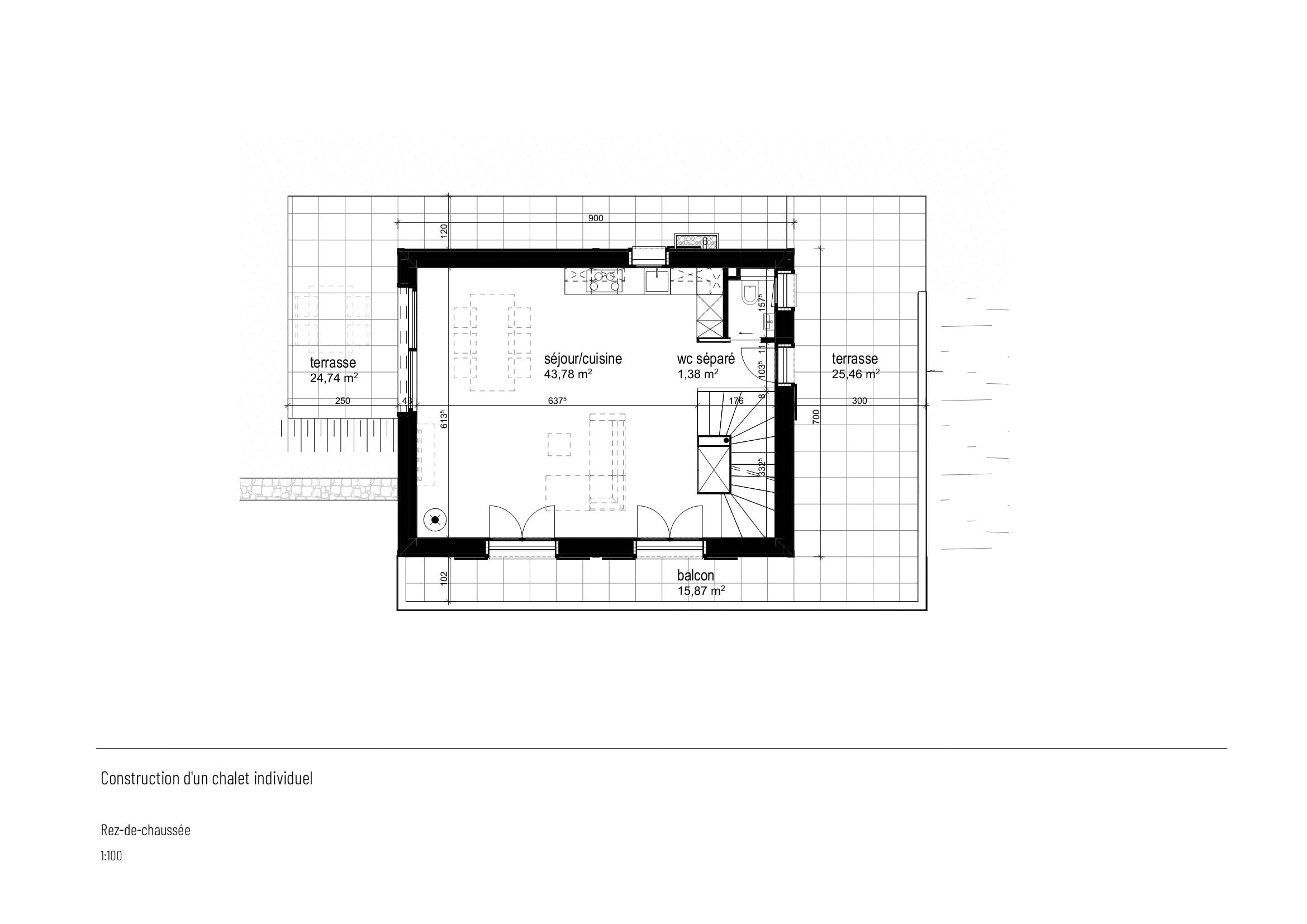
Rez-de-chaussée
- Pièce à vivre de 43 m2 avec cuisine ouverte sur la salle à manger et le séjour
- WC visiteur
- Accès aux terrasses (est et ouest) 2 x 25 m2 et balcon 16 m2
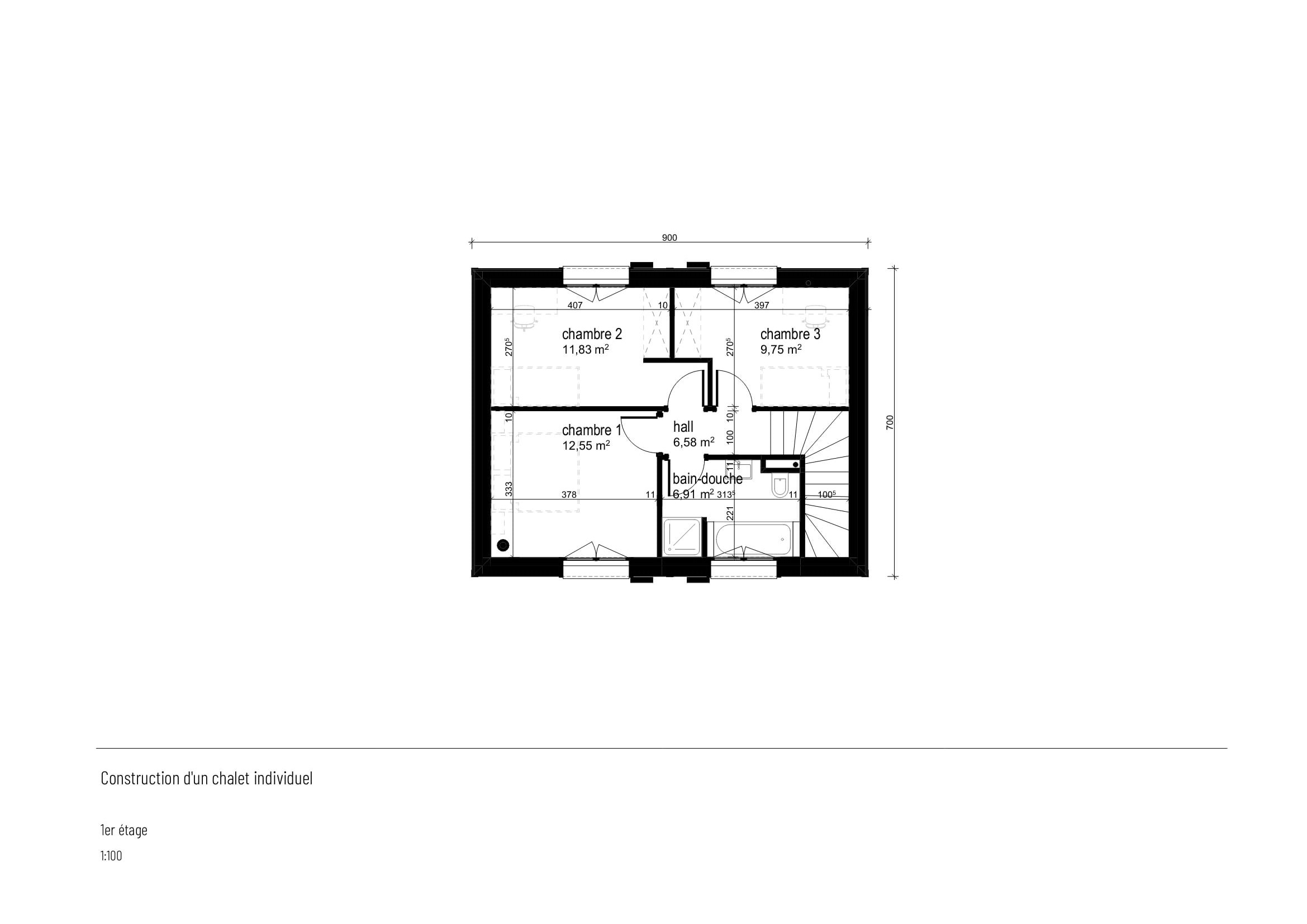
A l'étage :
- 3 chambres mansardées de 12.55 m2 à 9.75 m2
- Hall de distribution de 6 m2
- Salle d'eau de 7 m2 avec douche et baignoire
Particularités :
- Place de parc pour véhicules
- Accessible devant le chalet toute l'année même en hiver
- A 20 minute de Monthey
- A 25 minute de l'autoroute
- Vue à couper le souffle !
- Tranquillité
- Possibilité de faire du ski en hiver (toute petite station)
Remarques :
Le hameau des Cerniers fait partie de la commune de Monthey en Valais. Ce canton est renommé pour ses nombreux avantages sociaux et ses taxes modestes (caisse-maladie, impôt sur les véhicules, prestation en capital et autres impôts). Il se trouve également à moins de 4 km des Whitepod (18 dômes luxueux au cœur des Alpes ainsi qu'un restaurant proposant une cuisine saine et de terroir). On trouve aussi dans la région des bains thermaux, de nombreux sites touristiques (Aquaparc et Swiss Vapeur Parc au Bouveret, Labyrinthe Aventure à Evionnaz, etc..), ainsi que des sites culturels (Saint-Maurice et de son Abbaye millénaire, Martigny et la Fondation Gianadda, Monthey et son Théâtre du Crochetan, Montreux et son Jazz Festival de réputation internationale, etc.).
Ce chalet est idéal pour une famille qui souhaite s'établir en Valais en résidence principale ou comme résidence secondaire pour venir se ressourcer à la montagne. Il est également accessible pour les personnes domiciliées à l'étranger.
Vous souhaitez obtenir des précisions, visiter le terrain ? Contactez-moi par téléphone, courriel ou passer nous rencontrer (sur rendez-vous) dans l'une de nos agences du Chablais (Aigle, Collombey-Muraz ou Torgon) et nous vous renseignerons très volontiers. Retrouvez tous nos biens sur www.valimmobilier.ch - estimation gratuite de votre bien, photos professionnelles lumineuses et de qualité, photos aériennes et mise en valeur optimale du bien.
























