Beschreibung
Einzigartige Wohnlage mit herrlicher Aussicht auf die Walliser Bergwelt.
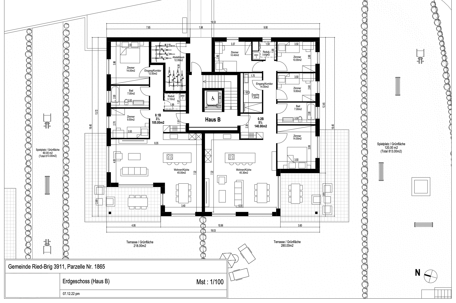
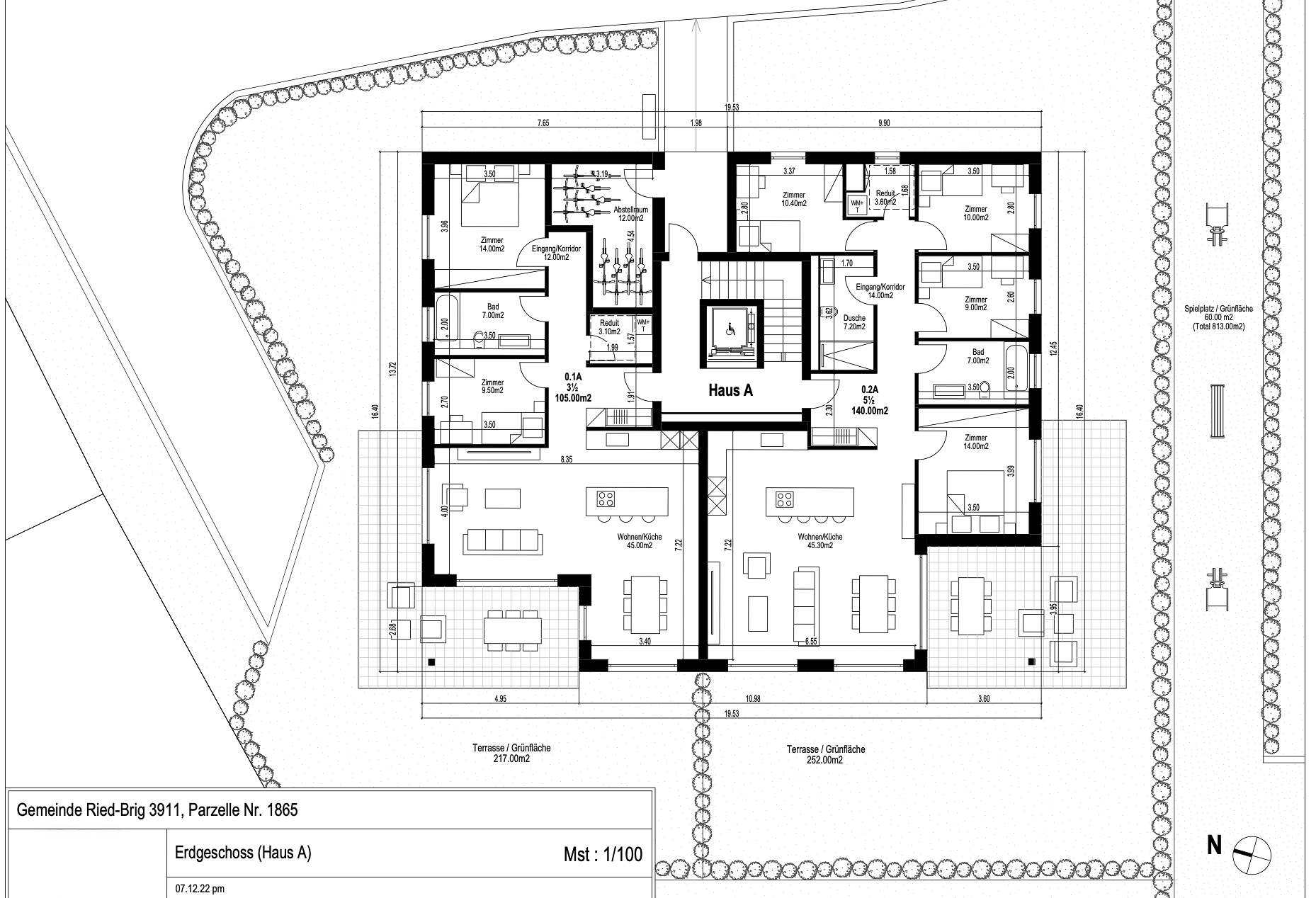
Die ruhige, familienfreundliche Überbauung von Ried-Brigue umfasst in der ersten Bauphase Wohnhäuser A und B. Die Umgebung wird gestaltet!
Die Sanitärapparate werden installiert! Der Parkettboden wird verlegt! Bald einzugsbereit!Der zweite Bauabschnitt mit den Mehrfamilienhäusern C und D wird ab 2026 errichtet.
Die beiden noch nicht verkauften 5.5-Zimmer-Wohnungen im Erdgeschoss verführen mit ihren raffinierten und modernen Grundrissen und einem sehr schönen und grossen Gartenplatz.
Die Unterteilung fügt sich sehr gut in die Umgebung ein. Die Architektur besticht durch ihr modernes und interessantes Erscheinungsbild.
Dank der luftigen Aufteilung ist die Innenbeleuchtung optimal. Die Apartments sind für Familien konzipiert und hochwertig ausgestattet. Käufer:innen können das Innere der Wohnung nach Belieben gestalten.
Zusammensetzung der Wohnung:
- Eingang mit Garderobe
- Wohnzimmer mit Zugang zur Terrasse und Grünfläche von 158 m2
- Küche offen zum Wohnzimmer
- Badezimmer mit Badewanne und ein Badezimmer mit Dusche
- Garagen können diazugekauft werden und führen mit Aufzug direkt zur Wohnung
- Einstellkammer
Lage:
- In der Nähe von Annehmlichkeiten (Geschäfte, Banken, Post, Cafés/Restaurants)
- Bushaltestelle
- Kindergärten und Grundschulen
- Autobahnauf-/-ausfahrt (Brig/Simplon)
Ried-Brig:
Das Dorf Ried-Brig liegt auf einer natürlichen Terrasse fünf Autominuten oberhalb der Alpenstadt Brig.
War das Dorf in den 1950er Jahren noch von der Landwirtschaft geprägt, hat es sich in den letzten Jahren stark verändert. Die Aussicht auf das Rhonetal, die abwechslungsreichen und sonnigen Spazierwege, die verschiedenen Spielplätze und die ausgebauten Schulen und Kinderkrippen machen sie heute zu sehr beliebten Wohngemeinden. Ab Bahnhof Brig ist das Dorf mit dem Postauto gut erschlossen.
Zögern Sie nicht mich zu kontaktieren. Gerne gebe ich Ihnen weitere Informationen.
Angaben
Anzahl Parkplätze
Dieses Objekt teilen
Energieetikette (GEAK)
Die Energieetikette gibt eine genaue Auskunft über den globalen Energie-Leistungsumfang (Heizung, warmes Wasser, Beleuchtung u.a.), wie auch der Isolationsqualität eines Gebäudes.











