Beschreibung
Idéalement situé, cet appartement de 3,5 pièces de 103 m2 avec terrasse et pelouse dans une nouvelle résidence en construction, a tout pour vous séduire.
Il bénéficie d'une situation optimale, sur la commune de Sion, à proximité de toutes les commodités de la plaine, au calme.
Il est composé comme suit :
Complète ce bien :
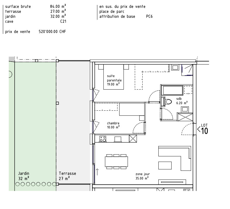
En supplément :
Particularités, infos complémentaires :
Disponibilité fin 2026
N'hésitez plus, demandez un dossier complet ou un rendez-vous à l'agence.
Il bénéficie d'une situation optimale, sur la commune de Sion, à proximité de toutes les commodités de la plaine, au calme.
Il est composé comme suit :
- Hall d'entrée avec rangement
- Cuisine équipée ouverte sur le séjour
- Agréable séjour
- Salle de douche avec WC, lavabo et branchement pour colonne de lavage
- Suite parentale avec coin dressing + salle d'eau avec douche et lavabo
- Chambre 2
- Terrasse de 27 m2
- Pelouse de 32 m2
Complète ce bien :
- Une cave C34
En supplément :
- Place de parc couverte n° PC3 à CHF 20'000.- en sus.
Particularités, infos complémentaires :
- 2 places de parc visiteurs
- Système de chauffage par PAC Eau-Eau
- Résidence en construction
- Commerces, coiffeur,... à proximité directe
- Arrêt de bus à proximité de l'immeuble
- Gare CFF de Châteauneuf Conthey à proximité
- Centres commerciaux de Châteauneuf Conthey à 3 km
- Ville de Sion à 5 km
- Commune de Sion
Disponibilité fin 2026
N'hésitez plus, demandez un dossier complet ou un rendez-vous à l'agence.
Angaben
Referenz
5064220
Badezimmer
2
Baujahr
2024
Zimmer
3.5
Schlafzimmer
2
Etage
1. Stock
Wertquote
18
Gewichtete Fläche
92 m²
Zustand der Immobilie
Neu
Standing
Standard
Wohnfläche
84 m²
Terrassenfläche
25 m²
Anzahl Toiletten
2
Parkplätze
Ja, obligatorisch
Anzahl Parkplätze
Innen
1 für CHF 20'000.-







